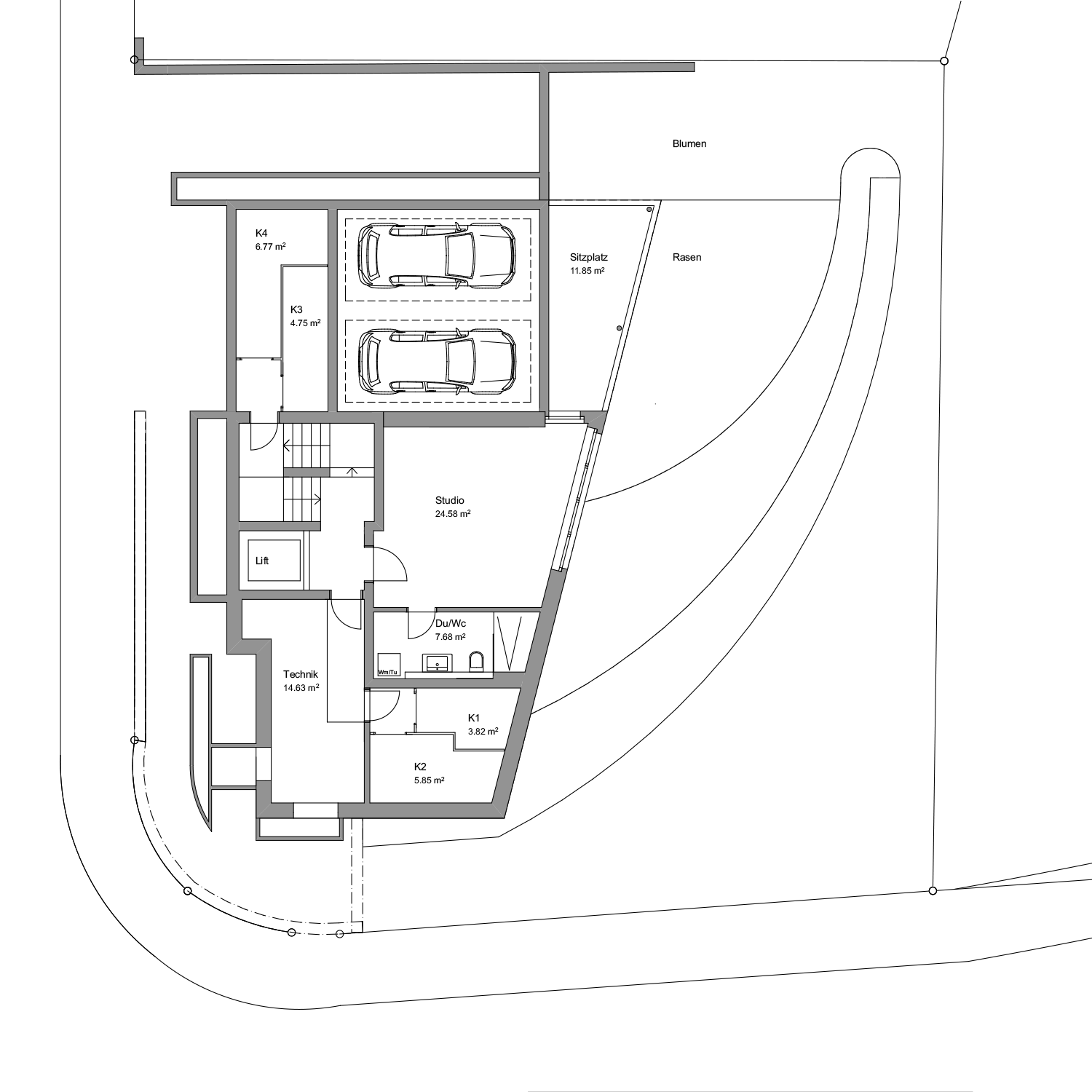
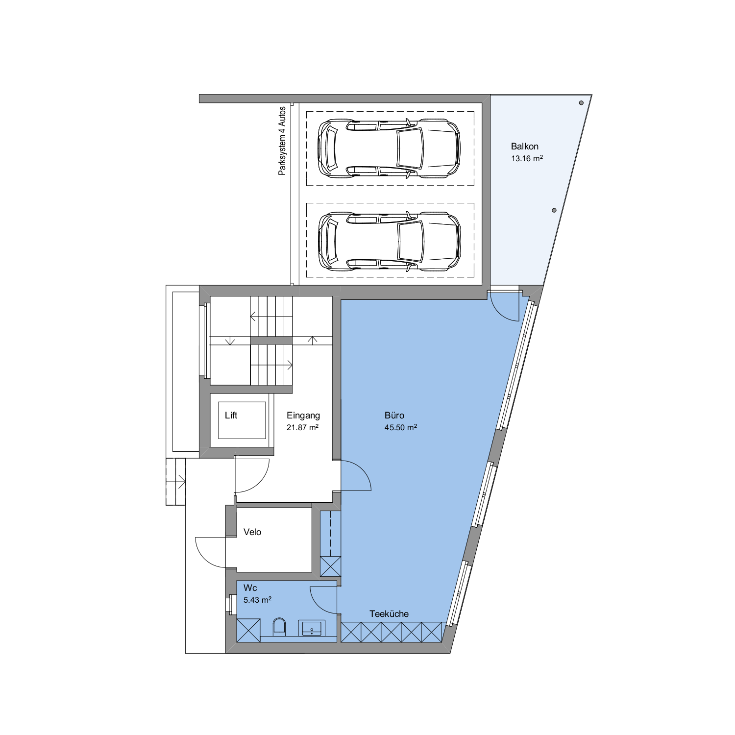
Etagenübersicht
Ihr neues Zuhause – Hier lässt es sich wohnen.

Aussen-Doppel-Parkplatz verkauft
Auto-Abstellplatz in Parksystem CHF 40’000
Einstellhallenplatz «Untersteinhof» CHF 40’000
Ihr neues Zuhause – Hier lässt es sich wohnen.

Aussen-Doppel-Parkplatz verkauft
Auto-Abstellplatz in Parksystem CHF 40’000
Einstellhallenplatz «Untersteinhof» CHF 40’000